【作者】瑞儿 【来源】金艾陶【发布日期】2016/6/15
小区:徐州开元翡翠湾
户型:C户型
设计风格:现代欧式风格
应用瓷砖品牌:金艾陶瓷砖
本案设计理念:现代欧式风格的装修注重庄严肃穆、优雅气质,能够将欧式风格的繁复与复古风格的奢华完美沟通,兼容华贵典雅与时尚现代。

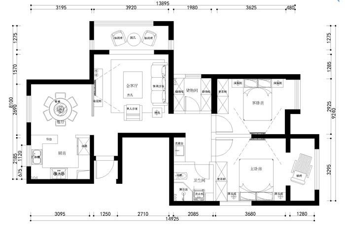
徐州开元翡翠湾C户型图

半镂空的背景墙设计将整个空间一分为二,而留下一小半儿的位置拉长空间的视觉。家具选择的是与地面铺设的陶瓷一线品牌金艾陶瓷砖金刚釉Ⅱ代KJP1805同色系的欧式沙发,时尚的银色茶几,黑色的电视柜增加了空间的沉稳度,而地面拼接的几何图形却在无形中增添了空间的时尚、灵动性。整个空间沉稳、优雅而不失灵动。

酒红色的餐桌配套在温馨的米色空间里显得格外的耀眼,餐桌上的红酒、西餐成了浪漫的代名词,温馨而浪漫。地面铺贴设计同样是采用客厅同款的金刚釉Ⅱ代瓷砖KJP1805拼接几何图形,优雅中带着时尚。

家里有一个会做饭的欧巴还不够,还得有个配的上帅气欧巴的厨房,帅气欧巴在开放式的厨房里忙活,是不是格外的养眼又养胃啊?这个厨房采用木色平开高柜、橱柜设计,墙体采用的是KPT36309极其配套的喷墨瓷片,这款浅色系瓷片让整个空间看起来干净明亮,充满居家气息。

线条简明的浴室设计,清新淡雅的色调,喷墨瓷片KPM30017及其配套产品包装下呈现在我们面前的是一个时尚个性的卫生间设计!

卧室,是我们卸下所有面具,回归本心,放松的地方。米黄色的金刚釉Ⅱ代瓷砖KJP1805温馨,KYX8110的沉稳,搭配的相得益彰,这款简单却不失格调的卧室设计,给人随意舒适的感觉,没有太多的繁琐。