【作者】瑞儿 【来源】金艾陶【发布日期】2016/6/22
小区:徐州开元翡翠湾
户型:G户型
设计风格:新中式风格
应用瓷砖品牌:金艾陶瓷砖
本案设计理念:新中式风格不是纯碎的文化元素堆砌,而是通过对传统文化的认识,将现代元素和传统元素结合在一起,以现代人的审美需求来打造富有传统韵味的事物,表达对清雅含蓄、端庄丰华的东方式精神境界的追求。

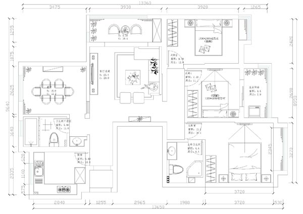
徐州开元翡翠湾G户型图

整体布局上以浅色系为主,在家具与配饰的精心选配上加入了硬朗及中性元素,结合金刚釉Ⅱ代瓷砖KJP的玉石纹理的柔和,让居室看上去清爽舒适,却又不失温馨的氛围。电视柜和茶几的颜色与门颜色相呼应,提亮了整个客厅的亮度,同时把复古而慵懒的感觉打造出来。

餐厅以简洁为主导,餐桌椅颜色差异的搭配,与地面金刚釉Ⅱ代瓷砖KJP1803的柔和及大理石瓷砖KYX8110的刚硬结合,协调而富有层次,筒灯散发光芒,增加了视觉的通透感,使不大的餐厅沉稳而不泛柔美。

小小的空间,却蕴含着大大的智慧!厨房装修的好坏直接影响厨师的心情,心情不好,饭菜的味道也会跟着变差了哦!这款金艾陶瓷砖喷墨瓷片充满活力的橙色让整个空间都活力十足,看着都是心情好好!在这样的厨房里做饭,瞬间化身男神、女神!

金艾陶瓷砖这款喷墨瓷片沉稳的灰色调,让人瞬间就将浮躁的心绪洗涤!简单却不单调,让你尽享你的独属净化空间!

整体格局设计简单却不失格调。筒灯散发着淡淡的光晕,把金刚釉Ⅱ代瓷砖KJP1803温馨,KYX8110的沉稳演绎的更加的通透彻底,墙面没有太多的装饰,简单的一副字画,就让整个空间清雅含蓄,清新舒适。