【作者】 【来源】【发布日期】2016/7/2
小区:徐州开元翡翠湾
户型:D户型
设计风格:简约乡村风格
应用瓷砖品牌:金艾陶瓷砖
本案设计理念: 简约乡村风格摒弃了繁琐和奢华,并将不同风格中的优秀元素汇集融合,以舒适机能为导向,强调“回归自然”,使这种风格变得更加轻松、舒适。

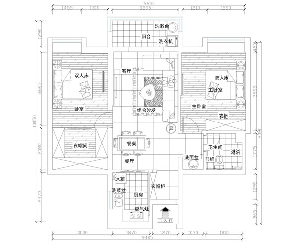
徐州开元翡翠湾D户型图

本餐厅空间运用了大气而简单的家具来显示出乡村风格的美好。简单而线条简明的原木色餐桌椅配套无不带着浓浓的自然、舒适元素,镂空的屏风又带着时尚的味道。

淡淡的灯光照射着整个空间,白色的茶几摆放着清新的果盘,蓝色格子的淡然优雅,电视正在热播的欧洲杯赛事,此刻,只想跟您一起沉迷于此。

白色的橱柜,让很有田园乡村风的厨房看起来很整洁明亮!爱回家,深爱着那个为爱洗手作羹汤的TA!

整个空间设计温馨而舒适。小清新的碎花图案搭配珍珠白的床,散落的灯光更增添了宁静雅致的气氛,体现乡村风情。