陶瓷一线品牌陶瓷十大畅销品牌广东省守合同重信用企业工程瓷砖推荐品牌联系我们我要加盟


护眼防滑砖开拓者

金艾陶家装:佛山禅城怡翠晋盛花园91㎡的现代风格装修鉴赏

【作者】瑞儿 【来源】金艾陶【发布日期】2017/3/9

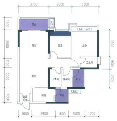
小区:佛山禅城怡翠晋盛花园

户型:三房两厅

设计风格现代风格

应用瓷砖品牌:金艾陶瓷砖

本案设计理念:一个美美的家都是从毛坯开始的,一步一个脚印去完善!接下来的这款现代风格三居室,家居空间显的清新简洁。整个空间采用的是浅色系,呈现出了一个含蓄而柔和的环境,平静而宁和。

金艾陶家装:佛山禅城怡翠晋盛花园91㎡的现代风格装修鉴赏

【御园】7座05单元

金艾陶家装:佛山禅城怡翠晋盛花园91㎡的现代风格装修鉴赏

金艾陶家装:佛山禅城怡翠晋盛花园91㎡的现代风格装修鉴赏

金艾陶家装:佛山禅城怡翠晋盛花园91㎡的现代风格装修鉴赏

金艾陶家装:佛山禅城怡翠晋盛花园91㎡的现代风格装修鉴赏

金艾陶家装:佛山禅城怡翠晋盛花园91㎡的现代风格装修鉴赏

金艾陶家装:佛山禅城怡翠晋盛花园91㎡的现代风格装修鉴赏